+
P_9
Φωτογραφίες
Είδος
Αστικές Κατοικίες
Τοποθεσία
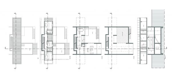
Porto Ennea, Attika
Είδος
2007
ARCHITECTURAL DESIGN
REACT ARCHITECTS
COLLABORATING ARCHITECT
RICHARD RUBIN
CIVIL ENGINEER
MFP CONSULTANTS
MEP
GIORGOS SOURIS
Φωτογραφίες
Είδος
Αστικές Κατοικίες
Τοποθεσία
Porto Ennea, Attika
Είδος
2007
ARCHITECTURAL DESIGN
REACT ARCHITECTS
COLLABORATING ARCHITECT
RICHARD RUBIN
CIVIL ENGINEER
MFP CONSULTANTS
MEP
GIORGOS SOURIS