Kaningos 21_Hotel
View Gallery
Type
Commercial
Location
Kaningos Sq., Athens, Greece
Type
2004
ARCHITECTURE DESIGN
META ARCHITECTURE
DESIGN TEAM
D.GOUNAROPOULOU - N DELIYIANNI - V. EMMANOUILIDOU - P.BAZOS - Y.SPIRIDONOS
MEP
LDK CONSULTANTS
CIVIL ENGINEER
RETECH SA
INTERIOR
PARASKEVI DESIGN
LIGHTING DESIGN
KIMON HOURSOGLOU
CONSTRUCTION COMPANY - CONTSURCTION MANAGEMENT
AKTOR A.T.E.
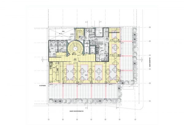
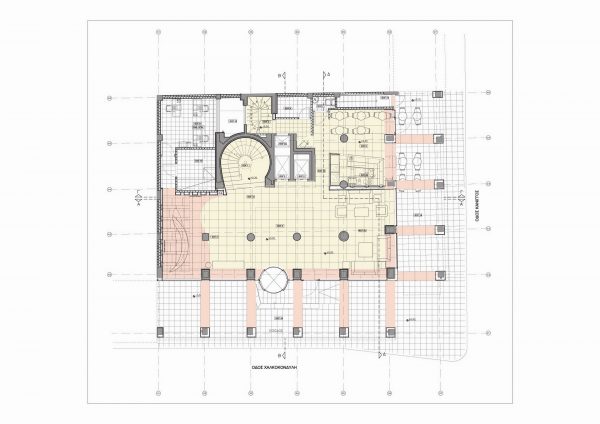
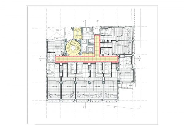
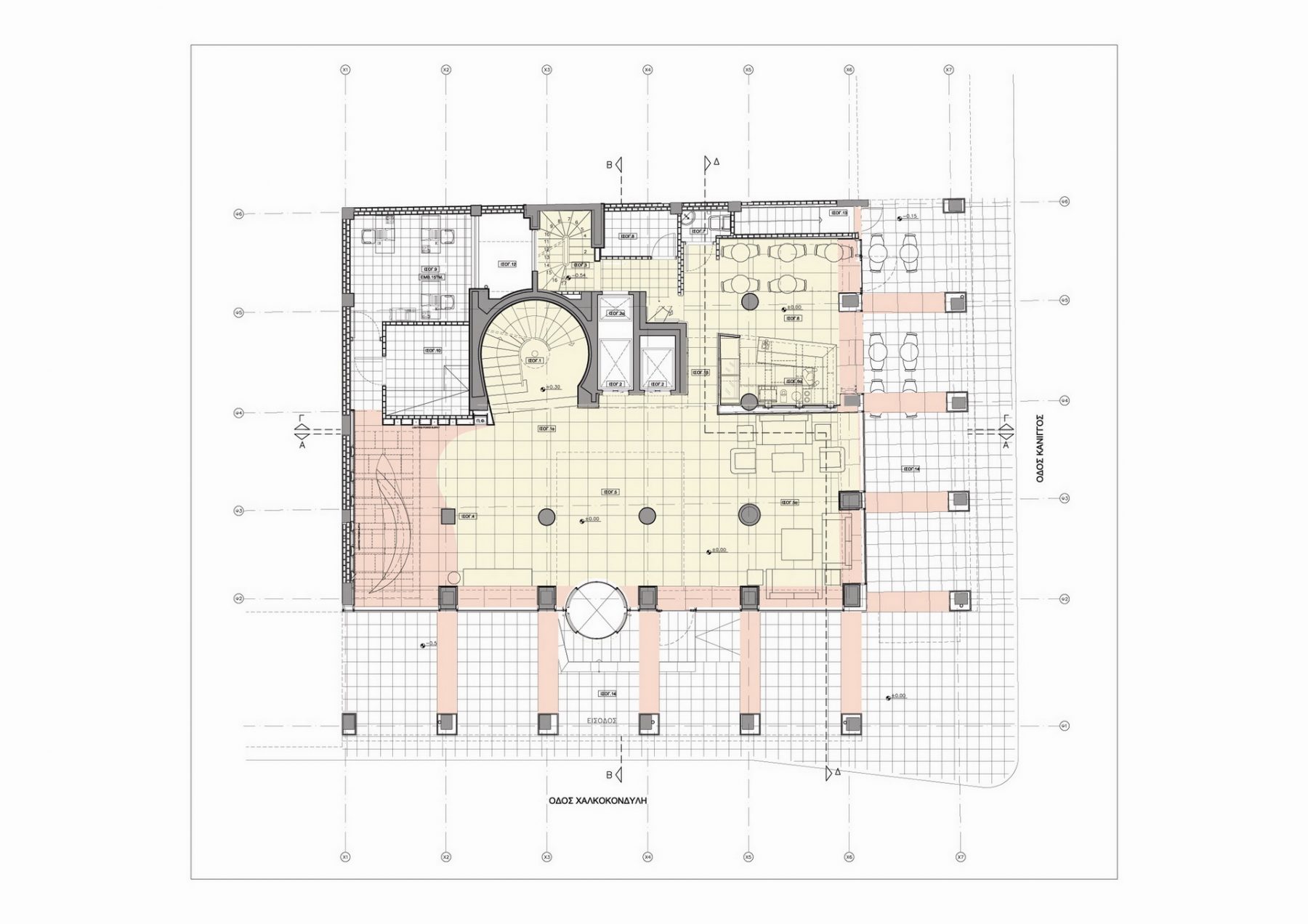
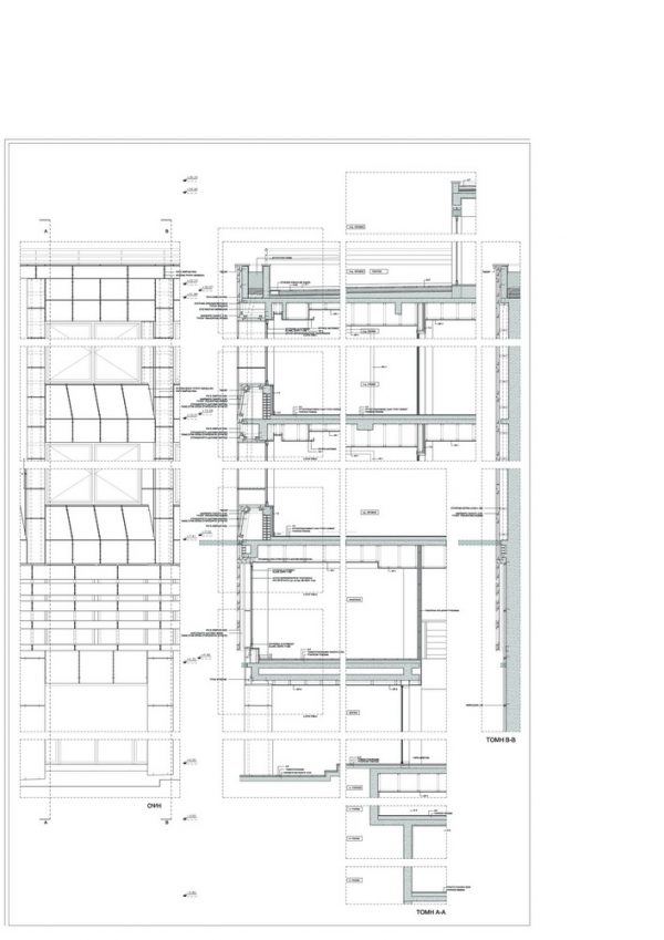
Kaningos 21 hotel is located on the northwest corner of Kaningos Square in the centre of Athens. The existing hotel was constructed in1965 and underwent a structural reinforcement and aesthetic refurbishing in 2004.The architectural approach to this project is sculptural. The thick columns and repetitive, recessed openings are giving the impression that the building has been carved out of a mass of stone. These large openings establish a relationship between each room-cell and the city outside.