ΕΠΙΒΑΤΗΓΟΣ ΣΤΑΘΜΟΣ ΛΙΜΕΝΑ ΠΑΡΟΥ
Φωτογραφίες
Είδος
Δημόσια Έργα
Τοποθεσία
ΛΙΜΕΝΑΣ ΠΑΡΟΥ, ΠΑΡΟΣ , ΚΥΚΛΑΔΕΣ
Είδος
2017-2021
ΦΟΡΕΑΣ ΑΝΑΘΕΣΗΣ
ΛΙΜΕΝΙΚΟ ΤΑΜΕΙΟ ΠΑΡΟΥ ΑΝΤΙΠΑΡΟΥ
ΑΡΧΙΤΕΚΤΟΝΙΚΗ ΜΕΛΕΤΗ
REACT ARCHITECTS I.K.E.
ΣΥΝΕΡΓΑΤΕΣ ΑΡΧ. ΜΕΛΕΤΗΣ
ΑΝΔΡΕΑΣ ΑΝΔΡΟΥΛΑΚΑΚΗΣ - ΤΑΤΙΑΝΑ ΤΖΑΝΑΒΑΡΑ
ΣΥΝΕΡΓΑΤΕΣ ΜΕΛ. ΕΦΑΡΜΟΓΗΣ
ΣΤΕΛΛΑ ΜΕΡΜΗΓΚΑ - MRA ARCHITECTS
ΣΤΑΤΙΚΗ ΜΕΛΕΤΗ
ΝΙΚΟΣ ΤΣΕΒΗΣ
ΗΛΕΚΤΡΟΜΗΧΑΝΟΛΟΓΙΚΗ ΜΕΛΕΤΗ
ΝΙΚΟΣ ΧΡΙΣΤΟΦΥΛΛΑΚΗΣ
ΤΟΠΟΓΡΑΦΙΚΗ ΜΕΛΕΤΗ - ΚΥΚΛΟΦΟΡΙΑΚΗ
ΓΙΩΡΓΟΣ ΚΟΤΤΙΚΑΣ
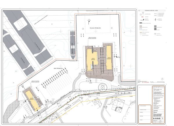
Ο Επιβατηγός Σταθμός βρίσκεται στο κεντρικό λιμάνι της Πάρου.
Τα νέα επιβατηγά πλοία και η αυξημένη τουριστική ζήτηση δημιουργούν μια πολυσύχναστη περιοχή ιδιαίτερα τους καλοκαιρινούς μήνες.
Η Αρχιτεκτονική πρόταση σε αυτό το παραθαλάσσιο τμήμα του νησιού που μεταφέρει επισκέπτες και κατοίκους υπαγόρευσε μια προσέγγιση που δεν θα ακολουθούσε τα παραδοσιακά πρότυπα αλλά θα προσέγγιζε με τη μορφή τις ανάγκες και τις χρήσεις ενός σύγχρονου λιμανιού με αυξημένη κίνηση.
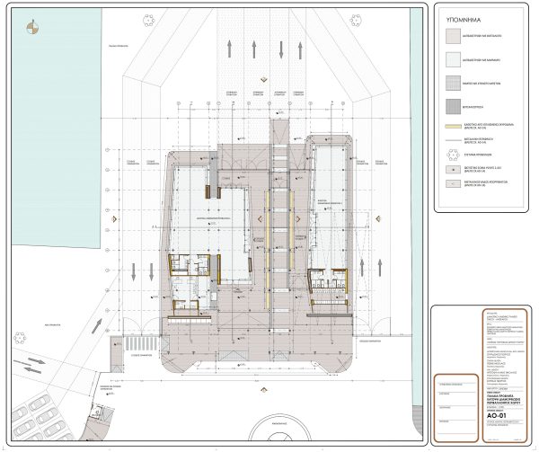
Ο τερματικός σταθμός των πλοίων θα είναι η πρώτη εικόνα που βλέπει ο επισκέπτης ερχόμενος στην Πάρο και η τελευταία κατά την αναχώρηση. Η μορφή και η αισθητική του κτιρίου είναι σημαντικό στοιχείο του όλου έργου. Η φόρμα που επιλέχθηκε για τη μελέτη χρησιμοποιεί μια Αρχιτεκτονική γλώσσα με αναφορές στα σχήματα των πλοίων και τα υλικά που σχετίζονται με αυτά. Δυναμική φόρμα που προσαρμόζεται στο λιμάνι και δημιουργεί ένα δυναμικό ανάγλυφο.
Η Κατασκευή δίνει την αίσθηση ενός ελαφριού κτιρίου με διαμπερότητα.
Αυτή η διαφάνεια από και προς τις οπτικές του οικισμού είναι επίσης σημαντικό σχεδιαστικό στοιχείο της Μελέτης γιατί το κτίριο έχει τοποθετηθεί εκεί χωρίς να εμποδίζει τη θέα από την Πόλη προς τη Θάλασσα και τον κόλπο της Παροικιάς.
Τα κτίρια με τις κινητικές φόρμες στις στέγες τους δίνουν μια αίσθηση ελαφρότητας στον όγκο τους και όπως προαναφέραμε θυμίζουν τις μορφές των πλοίων.
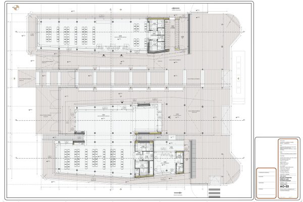
Η μελέτη στοχεύει να αναδείξει το βασικό ορόσημο του Λιμανιού της Παροικιάς, τον Ανεμόμυλο. Έτσι, ο μεγάλος όγκος ενός μόνο κτιρίου χωρίστηκε σε τρεις μικρότερους όγκους, αφήνοντας ανεμπόδιστη την προοπτική του αποβιβαζόμενου επιβάτη.
Η θέα είναι ανεμπόδιστη και ο χώρος που σχηματίζεται ανάμεσα στα κτίρια λειτουργεί ως μεγάλη πλατεία αναμονής και ταυτόχρονα εξυπηρετεί την έξοδο των επιβατών από τα Πλοία. Αυτό δίνει στον επιβάτη το πλεονέκτημα να έχει θέα στον οικισμό.
Το κτιριακό συγκρότημα προβλέπεται να κατασκευαστεί με φέρον οργανισμό από οπλισμένο σκυρόδεμα και κάθετα υαλοπετάσματα σε συνδυασμό με τοίχους καλυμμένους με φύλλα HPL.
Η επικάλυψη των στεγών παρέχεται με σύνθετα πάνελ με εσωτερικό κυψελωτό πυρήνα αλουμινίου.
Έχει καταβληθεί κάθε δυνατή προσπάθεια ώστε το αισθητικό αποτέλεσμα να είναι αρμονικό. Η επιλογή των υλικών έγινε με γνώμονα την αντοχή και την ευκολία συντήρησης. Τέλος, στο μέτρο του δυνατού, προτιμήθηκαν τοπικά υλικά.
Ο επιβατηγός Σταθμός με τα κτίρια του ,μπορούν να γίνουν ορόσημο του λιμανιού της Παροικιάς και ιδανικό σημείο αναφοράς για τους επισκέπτες.